欢迎关注集简空间!
快捷上传
上传3D模型
上传贴图
上传SU模型
上传软件
综合素材上传
等级:
ID:
简豆充值
资产管理
退出
注册
登录
首页
3D模型
贴图
SU模型
软件/插件
综合素材
3D模型
3D模型
贴图
SU模型
软件/插件
综合素材
搜索
所在位置:
综合素材
>
cad图库
>
整套图纸
>
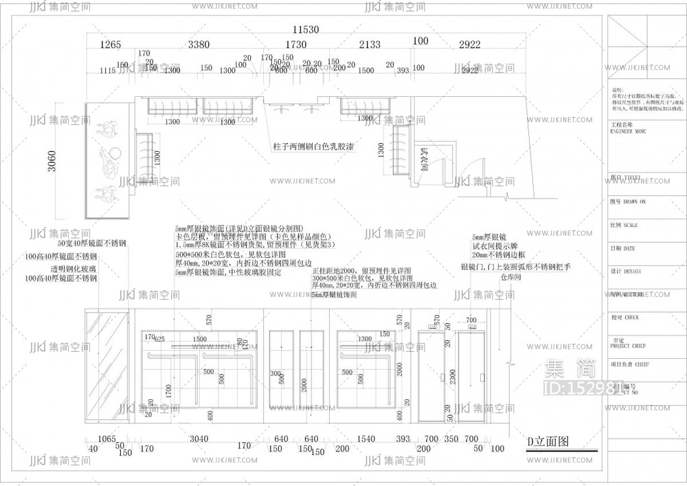
服装店设计施工图 [ID:152981]
服装店设计施工图
ID:152981
观看次数
990次
更新时间
2025-04-12
文件大小
6.21MB
文件信息
CAD2004版本
绿萝和猫
+关注
评论(0)
收藏(0)
纠错
关于TA
TA的作品
留言TA
分享至:
商品详情
服装专卖店设计施工图CAD2004
相似推荐
眼镜店施工图
收费交易
ID:153098
下载
艺术展厅图cad
收费交易
ID:152841
下载
服装展厅和办公室设计施工图cad
收费交易
ID:152840
下载
眼镜店吴中路施工图
收费交易
ID:152300
下载
商场服装专柜施工图cad
收费交易
ID:152299
下载
SOH品牌服装店施工图CAD
收费交易
ID:152298
下载
电线电缆电气电路配电电气系统符号表示讲解CAD
收费交易
ID:152297
下载
赛普路斯男装店cad
收费交易
ID:152296
下载
高空抛物监控系统施工图
收费交易
ID:152295
下载
七匹狼店服装店施工图
收费交易
ID:152294
下载
会员评论
暂无评论
发表评论
回复
提交
模型报错
模型报错原因
分类错误
图片与模型不一致
版本错误
模型重复
解压文件打不开或有问题
丢失贴图或材质
提交报错
创建文件夹
收藏
请使用支付宝或微信扫码支付
应支付:¥
0
元
支付成功!
百度网盘下载
提取码:
复制
充值
会员充值
简豆充值
问题建议
问题建议
收藏
我的收藏
客服微信
电话
13552963393
回到顶部
问题建议
内容
联系方式
提交